PJ Veth

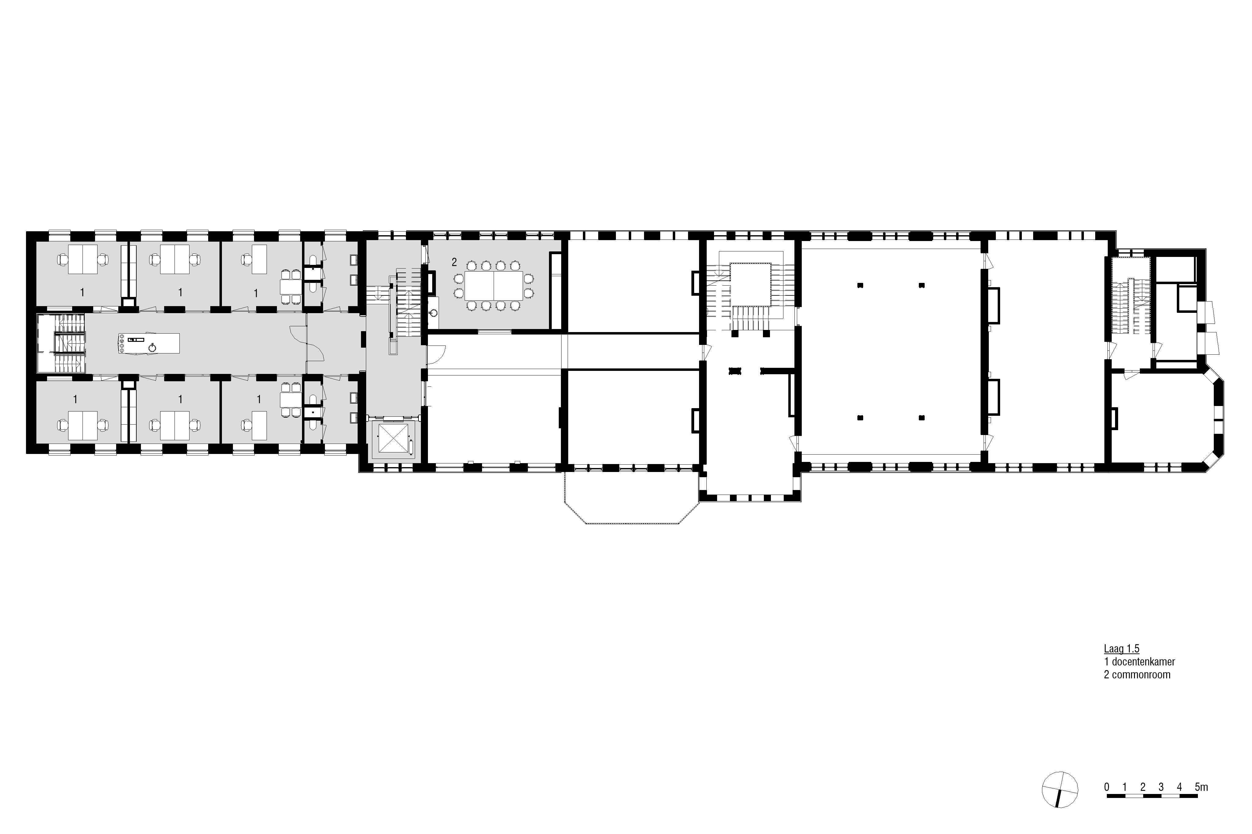
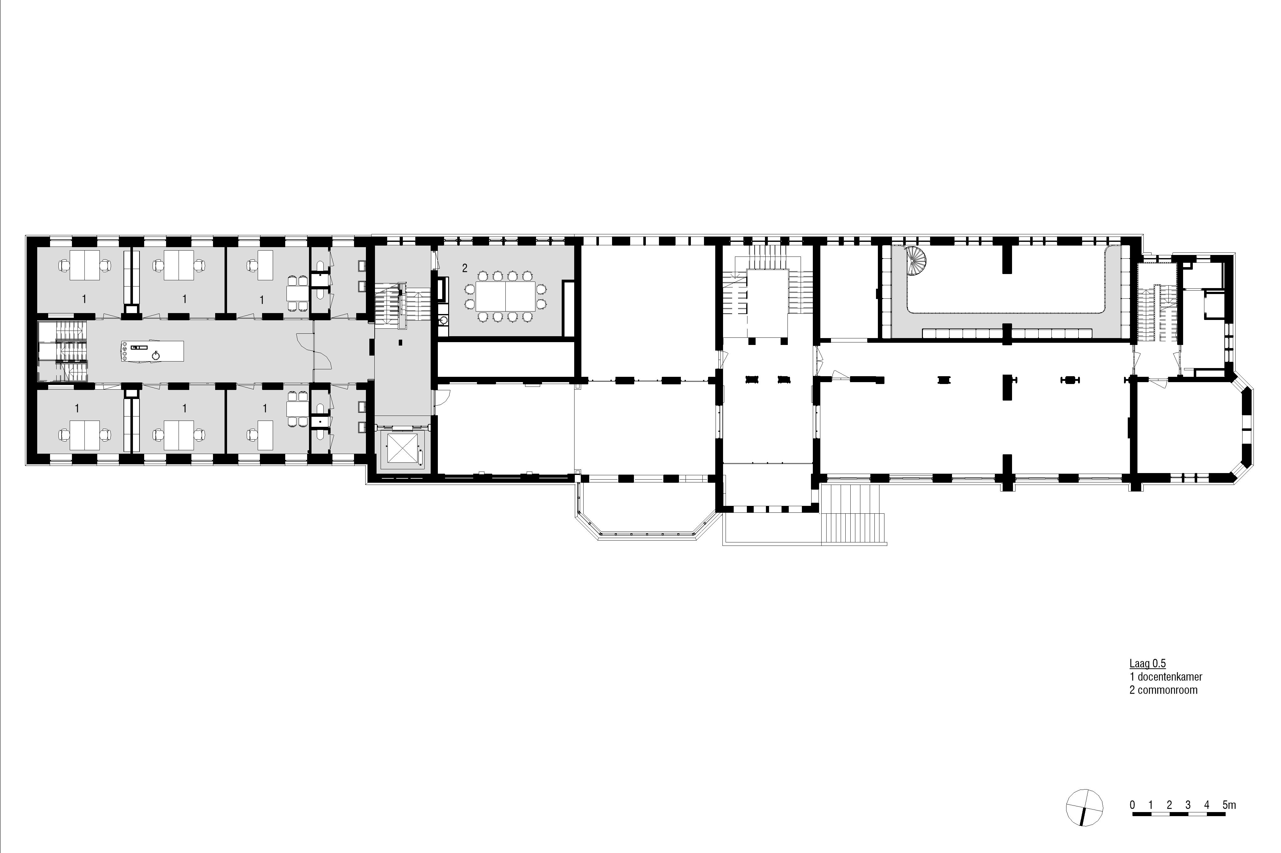
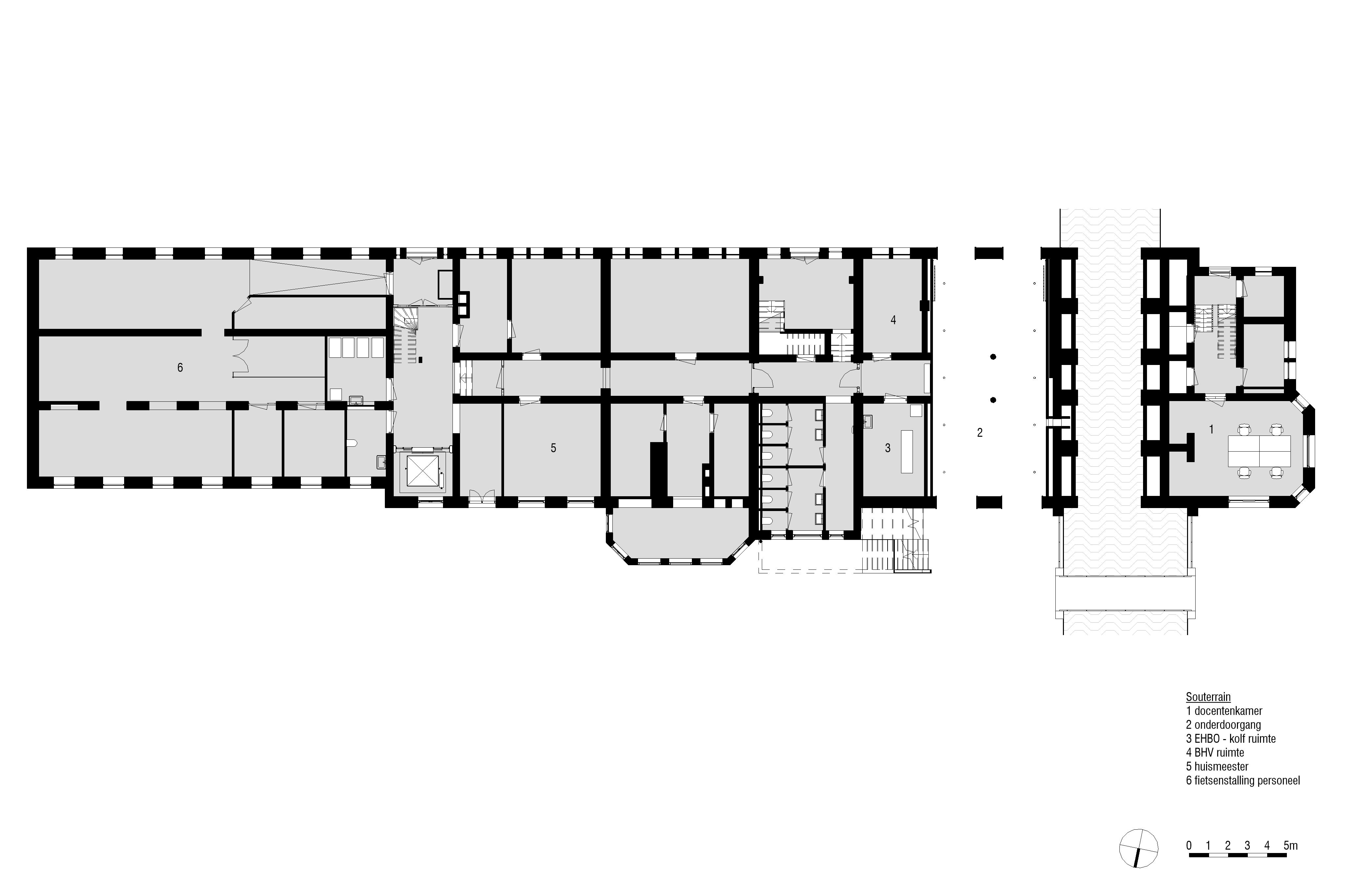
Het PJ Veth gebouw grenst aan de Leidse Hortus Botanicus.  De monumentale status van het gebouw heeft tijdens de verbouwing en renovatie een belangrijke rol gespeeld. Door middel van innovatieve oplossingen is het gebouw in ere hersteld. Zo is het bovenste deel van het centrale trappenhuis, het visitekaartje van het gebouw, 180º gedraaid. Daarnaast is ook een onderdoorgang gerealiseerd, om de bereikbaarheid van het gebouw te vergroten. Maar de meest ingrijpende verandering in het nieuwe ontwerp is de verplaatsing van de entree die de voor- en achtergevel als het ware heeft omgedraaid. Behalve de bouwkundige elementen, speelt het kleurgebruik  in dit ontwerp een belangrijke rol. De oorspronkelijke kleuren zijn door het verwijderen van lagen verf en bestuderen van historische foto’s teruggehaald en vormen de basis voor het huidige kleurenpalet.

Duurzaamheid is binnen deze renovatie en verbouwing een belangrijk thema. Zo staat het hergebruik van ruimtes, materialen en ornamenten centraal. Aan oude labtafels wordt nu gestudeerd en spoelbakken die als wastafels in de toiletruimten. Tevens is het gebouw waar mogelijk voorzien van isolerend monumentenglas, waterbesparend sanitair en slimme LED verlichting.

Opdrachtgever
Universiteit Leiden
Locatie
Leiden
Oplevering
Augustus 2018
Aannemer
Burgy Bouwbedrijf
In samenwerking met
Diederik de Jonge
PDF